9 Fotos und Anhänge ansehen
Heidi Bartel Immobilien
Hauptstr. 3, 73262 Reichenbach
Heidi Bartel
Teilen

Außenansicht

Gastraum

Außenansicht

Gastraum

Gastraum

Durchgang

WC Herren

WC Damen

Wasser- und Stromanschluss

Attraktive Möglichkeiten für Tages-Café / Café in Reichenbach

Eckdaten

  • Art Cafe
  • Lage 73262 Reichenbach an der Fils
  • Miete zzgl. NK 900,00
  • Nebenkosten 190,00
  • Baujahr 2019
  • Gesamtfläche ca. 75
  • Heizungsart Fußbodenheizung
  • Kaution 2700€
  • Bezugstermin sofort
  • Bodenbelag Fliesen
  • Zustand Neuwertig
  • Immobilien-ID 6746
  • Provision 3 MM zzgl. MwSt.

Immobilie

Diese moderne Gewerbefläche befindet sich in zentraler und gut frequentierter Lage von Reichenbach an der Fils. Die Immobilie profitiert von ihrer guten Sichtbarkeit, da sie sich direkt an der Durchfahrtstraße befindet – ideale Voraussetzungen für ein erfolgreiches Café-Konzept.

Der Zugang ist ebenerdig und barrierefrei. Die Fläche ist eingebunden in ein gewachsenes Umfeld aus Einzelhandel, Dienstleistungsbetrieben und Praxen. Die direkte Nachbarschaft zu einem etablierten Friseurbetrieb sowie weiteren Geschäften sorgt für zusätzliche Laufkundschaft und bietet beste Bedingungen, um sich als beliebter Treffpunkt im Ort zu etablieren.

In unmittelbarer Umgebung stehen zahlreiche Parkmöglichkeiten zur Verfügung. Zusätzlich befindet sich eine öffentliche Tiefgarage direkt gegenüber und gewährleistet eine bequeme Erreichbarkeit für Gäste – sowohl für den schnellen Kaffee zwischendurch als auch für den entspannten Aufenthalt.

Die Räumlichkeiten eignen sich hervorragend für die Nutzung als Café oder Coffee Lounge. Ob Frühstücksangebot, hausgemachte Kuchen oder ein modernes Coffee-to-go-Konzept – die zentrale Lage und die gute Sichtbarkeit bieten optimale Voraussetzungen, um eine einladende Atmosphäre zu schaffen und einen attraktiven Treffpunkt für Jung und Alt zu etablieren.

Ein besonderes Highlight bietet die Möglichkeit, eine ansprechende Event-Dachterrasse in das Gesamtkonzept zu integrieren. Hier ließe sich eine attraktive Außenfläche mit besonderem Ambiente schaffen – ideal für Sommerveranstaltungen, After-Work-Events, private Feiern oder exklusive Genussabende. Eine solche Erweiterung eröffnet zusätzliche Umsatzpotenziale und verleiht dem Café einen unverwechselbaren Charakter mit Erlebnisfaktor.

Lage

Reichenbach an der Fils hat ca. 8400 Einwohner und liegt verkehrsgünstig an der B 10 und in der Nähe der Autobahn A8 (ca. 10 Minuten mit dem Auto). Zum Flughafen sind es ca. 20 Autominuten, zum HBF nach Stuttgart ca. 30 Autominuten.

Das Zentrum von Reichenbach verfügt über einen ausgeprägten Einzelhandel. Es gibt mehrere Discounter, Ärzte und Apotheken.
In Reichenbach gibt es mehrere Kindergärten, eine Grundschule mit Ganztagesbetreuung und eine Realschule.
Eine Bushaltestelle befindet sich direkt vor dem Haus. Von hier aus
verkehrt der Ortsbus in die Ortsteile Risshalde und Siegenberg.

Die Geschäftsräume liegen in sehr gut frequentierter Lage in der Nähe des Bahnhofs von Reichenbach/Fils direkt an der Durchfahrtsstraße. (Zone 30)

Ausstattung

Fußbodenheizung
Fußbodenkühlung
Niedrigenergie-Bauweise

Für das Ladengeschäft stehen mehrere Kunden-WCs (Damen und Herren) zur Verfügung, die mit anderen Geschäften gemeinschaftlich genutzt werden.

Außenwerbung und Sitzplätze vor der Immobilie möglich.

Zusätzlicher Lagerraum im UG vorhanden.

Nutzung einer Event-Terrasse bei Bedarf und Anfrage

Sonstiges

sämtliche Angaben stammen vom Vermieter. Für die Vollständigkeit und Richtigkeit wird keine Haftung übernommen.

Energieausweisangaben

A+
A
B
C
D
E
F
G
H
  • Enerigeausweistyp Verbrauchsausweis
  • Energiekennwert 27 KWh(m²*a)
  • Energieeffizienzklasse A+
  • Energieausweis erstellt am 28.08.2019
  • Energieausweis gültig bis 27.08.2029
  • Heizungsart Fußbodenheizung
  • Befeuerung / Energieträger Strom

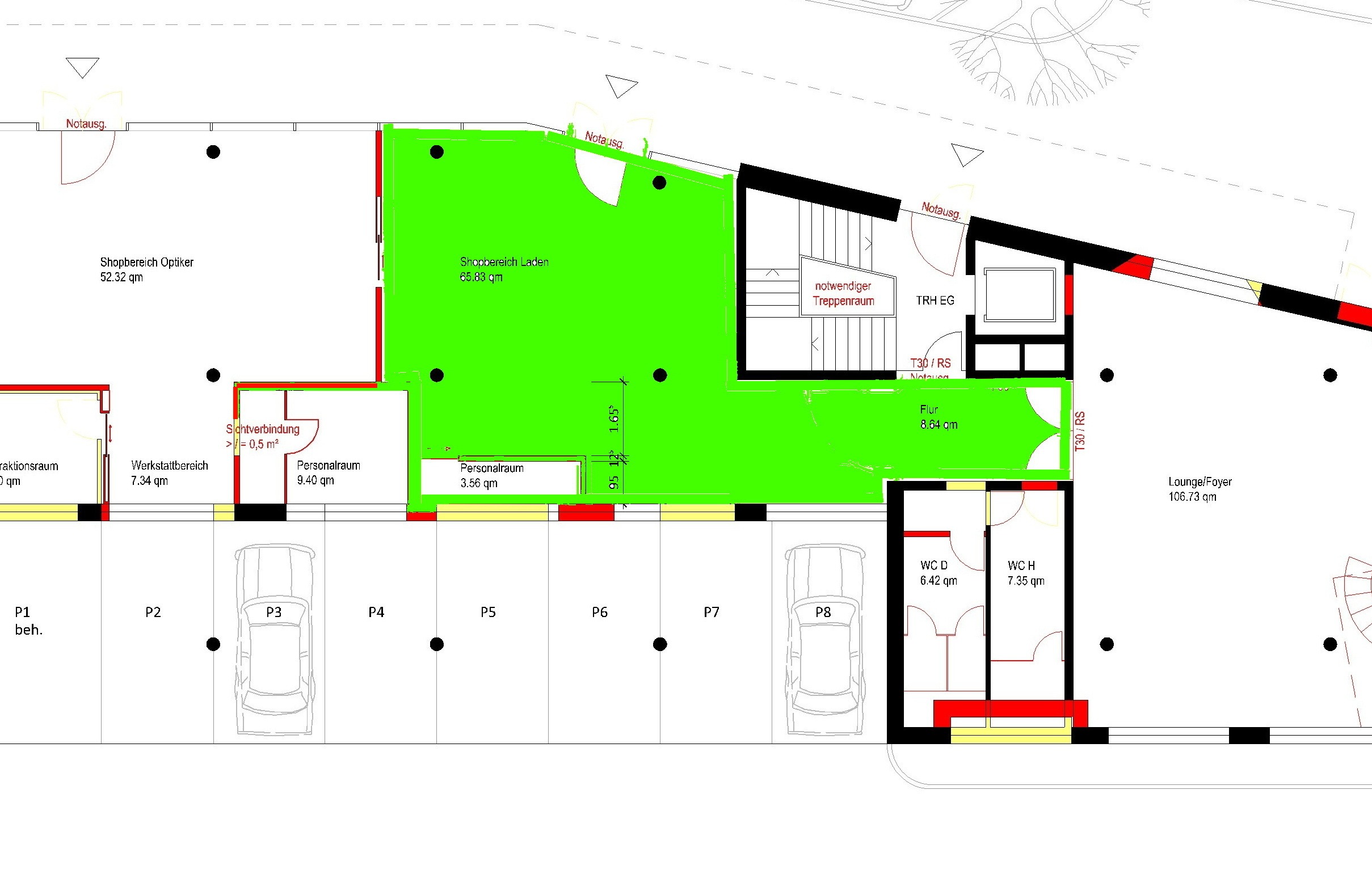
Grundrisse

Wie können wir Ihnen behilflich sein?

Herzlichen Dank für Ihre Anfrage.

Wir werden diese so schnell wie möglich bearbeiten.

Wie können wir Ihnen behilflich sein?
* Pflichtfeld

Reichenbacher Frühjahrsputz

Besuchen Sie uns beim Frühjahrsputz am 13. April 2025 in der „Alten Moste“. Wir stellen Ihnen aktuelle Immobilienangebote vor und kommen mit Ihnen ins Gespräch.

Auch für Ihr leibliches Wohl ist, wie immer, bestens gesorgt!

Wir freuen uns auf Sie,

Ihr Team von Heidi Bartel Immobilien