13 Fotos und Anhänge ansehen
Heidi Bartel Immobilien
Hauptstr. 3, 73262 Reichenbach
Heidi Bartel
Teilen

Verkaufsfläche

Außenansicht

Verkaufsfläche

Umgebung

Außenansicht

Verkaufsfläche

Nebenräume

Nebenräume

Nebenräume

Büro

Büro

Rathaus

Marktplatz

Gewerbefläche für Einzelhandel oder Büro in 1 A Lage im Zentrum von Schorndorf zu vermieten

Eckdaten

  • Art Einzelhandelsflächen
  • Lage 73614 Schorndorf
  • Miete zzgl. NK 2.835,00
  • Kellerfläche ca. 43
  • Baujahr 1942
  • Nutzfläche ca. 145
  • Heizungsart Zentralheizung
  • Kaution 2 MM
  • Zustand Gepflegt
  • Immobilien-ID 6675
  • Provision 2 MM zzgl. MwSt.

Immobilie

Diese absolut zentral gelegenen Geschäftsräume am Marktplatz bieten eine Vielzahl von Verwendungsmöglichkeiten. Gastronomie ist jedoch nicht möglich.
Die umgebenden Straßen und Plätze sind zum Teil als Fußgängerzone gestaltet und haben eine gute Passantenfrequenz.
Der Marktplatz selbst ist befahrbar

Die Räume im Herzen von Schorndorf eignen sich sowohl für Gewerbe, Einzelhandel, als Büro oder als Praxisräume für Physiotherapie.
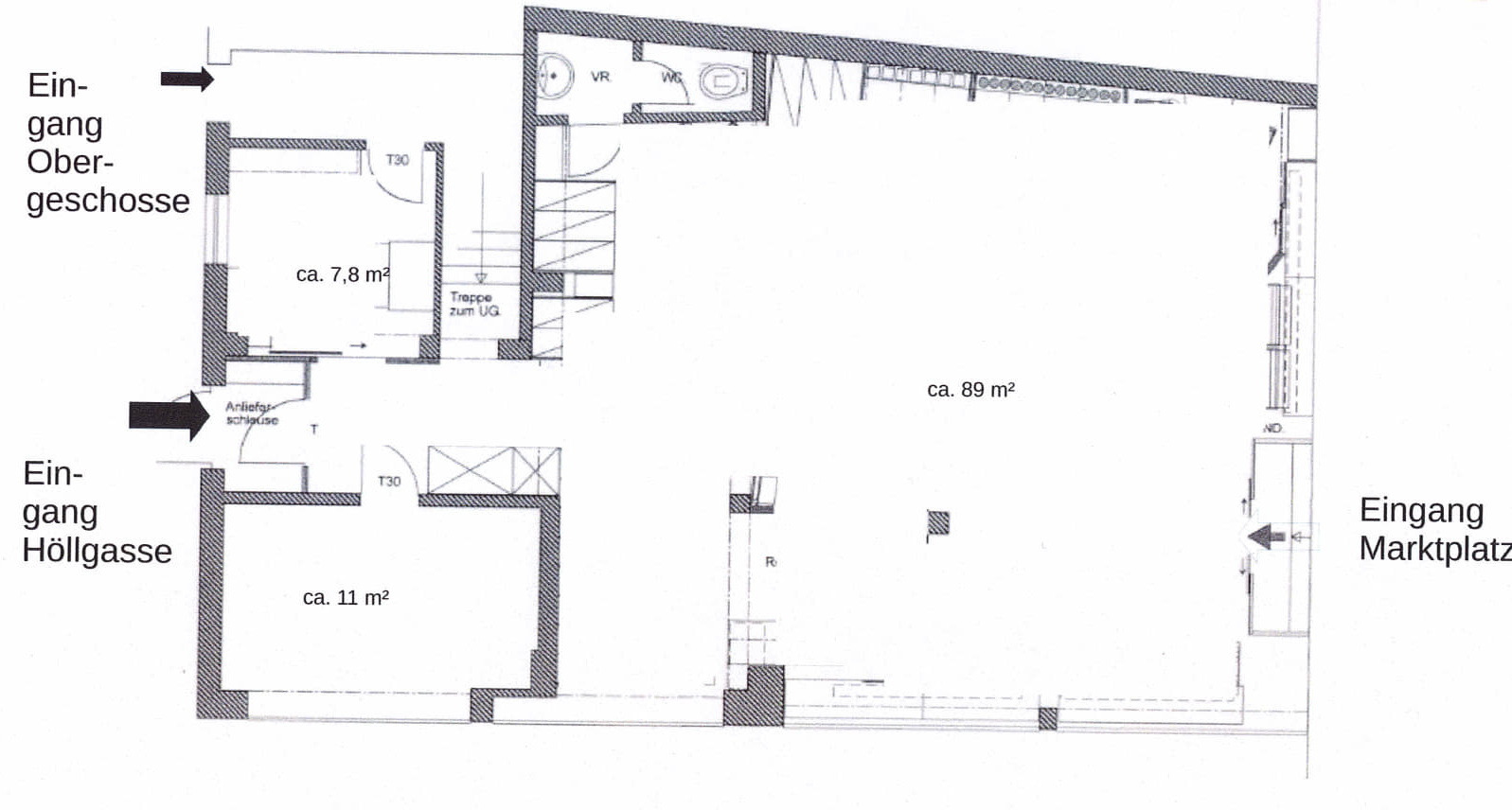
Der Zugang vom Marktplatz führt über 3 Stufen zum Eingang der Gewerbeflächen.
Der Eingang ist überdacht und beleuchtet.

Der vordere Bereich kann als helle Verkaufsfläche mit großer Schaufensterfront genutzt werden. Im hinteren Bereich befinden sich 2 Nebenräume / Büros, teilweise mit Wasseranschluss, sowie eine Kundentoilette.

Von der Höllgasse aus gibt es einen weiteren Zugang.

Im UG befinden sich Lager- und Personalräume, sowie ein Kühl,- und Heizraum.

Gastronomie ist in diesem Objekt nicht möglich.

Lage

Diese großzügige Gewerbe-/Laden-/Bürofläche befindet sich direkt am belebten Marktplatz, in TOP Lage. Hier finden sich zahlreiche Geschäfte, Restaurants und Bürogebäude, die für eine hohe Besucherfrequenz sorgen. Die unmittelbare Umgebung ist geprägt von einer sehr guten Infrastruktur mit öffentlichen Verkehrsmitteln sowie reichlich Parkmöglichkeiten. Der Marktplatz und die Höllgasse sind befahrbar.

Schorndorf ist eine pulsierende Metropole im Herzen des Landes. Sie zeichnet sich durch eine vielfältige Kulturszene, eine ausgeprägte Gastronomie und eine dynamische Wirtschaft aus. In der Stadt gibt es eine Vielzahl an Sehenswürdigkeiten, Parks und Einkaufsmöglichkeiten, die für Attraktivität bei Einheimischen und Touristen sorgen.

Die Region, in der sich die Immobilie befindet, ist für ihre gute verkehrstechnische Anbindung und ihre wirtschaftliche Stärke bekannt. Sie bietet Unternehmen aus verschiedenen Branchen optimale Bedingungen für Erfolg. Zudem lockt die Region mit einer hohen Lebensqualität, einer schönen Natur und vielfältigen Freizeitmöglichkeiten.
Der Flughafen Stuttgart ist ca. 43 km entfernt und über die B10 und die BAB 8 zu erreichen.

Ausstattung

- Gas-Zentralheizung aus 2000
- Diverse Stromanschlüsse im Verkaufsraum
- 3 Phasen Stromleitungen
- Warmwasserversorgung auf Strombasis
- Regaleinbauten in den Nebenräumen EG
- weiße Holztüren
- elektrisches Schiebeelement im Schaufenster und und Laden
- überdachter Eingang mit Einbauleuchten

Sonstiges

Die Angaben zum Objekt stammen von den Vermietern.
Eine Haftung für die Richtigkeit wird nicht übernommen.

Energieausweisangaben

A+
A
B
C
D
E
F
G
H
  • Enerigeausweistyp Bedarfsausweis
  • Energiekennwert 242 KWh(m²*a)
  • Energieeffizienzklasse G
  • Energieausweis erstellt am 10.04.2025
  • Energieausweis gültig bis 10.04.2035
  • Heizungsart Zentralheizung
  • Befeuerung / Energieträger Gas

Grundrisse

Wie können wir Ihnen behilflich sein?

Herzlichen Dank für Ihre Anfrage.

Wir werden diese so schnell wie möglich bearbeiten.

Wie können wir Ihnen behilflich sein?
* Pflichtfeld

Reichenbacher Frühjahrsputz

Besuchen Sie uns beim Frühjahrsputz am 13. April 2025 in der „Alten Moste“. Wir stellen Ihnen aktuelle Immobilienangebote vor und kommen mit Ihnen ins Gespräch.

Auch für Ihr leibliches Wohl ist, wie immer, bestens gesorgt!

Wir freuen uns auf Sie,

Ihr Team von Heidi Bartel Immobilien