7 Fotos und Anhänge ansehen
Heidi Bartel Immobilien
Hauptstr. 3, 73262 Reichenbach
Heidi Bartel
Teilen

Wohn- Esszimmer

Balkon

Küche

Küche

Flur

Bad

Bad

TOP moderne 2,5 Zimmerwohnung in zentraler Lage mit großem Balkon in Reichenbach zu vermieten

Eckdaten

  • Art Etagenwohnung
  • Lage 73262 Reichenbach
  • Miete zzgl. NK 850,00
  • Nebenkosten 230,00
  • Wohnfläche ca. 74
  • Zimmer 2.5
  • Baujahr 2017
  • Nutzfläche ca. 6
  • Etage 1
  • Heizungsart Zentralheizung
  • Einbauküche ja
  • Gäste-WC ja
  • Anzahl Balkone 1
  • Kaution 1.700,00 €
  • Haustiere erlaubt nein
  • Verfügbar ab 01.03.2026
  • Immobilien-ID 6728

Immobilie

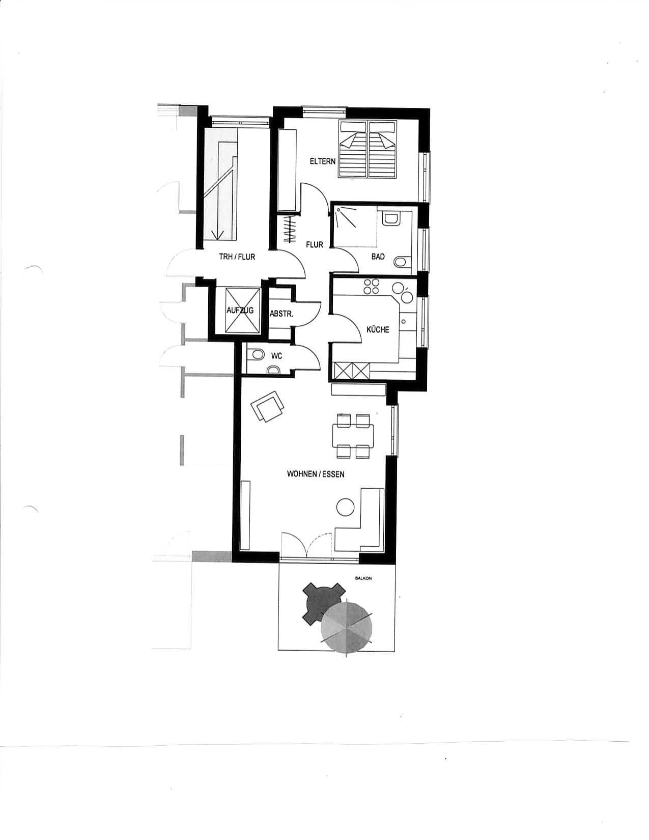
Diese modern ausgestattete, neuwertige 2,5 Zimmer Wohnung befindet sich im 1. OG eines kleinen Mehrfamilienhauses in Ortslage von Reichenbach an der Fils.

Sie erreichen die Wohnung bequem mit dem Aufzug oder über das große Treppenhaus.

Vom geräumigen Flur aus erreichen Sie die einzelnen Zimmer der weitläufigen Wohnung. Im Flur sind Einbaustrahler integriert. Gegenüber der Wohnungstür befindet sich ein großes Bad mit gefliester Dusche, Waschbecken, WC, Bidet, elektrischem Handtuch-Wärmer und großem Fenster.
Links davon gibt es ein großes Schlafzimmer mit ausreichend Platz für ein großes Bett und einen Kleiderschrank. Hier sorgen 2 Fenster für ausreichend Helligkeit.
Den Flur rechts folgend erreichen Sie links die geräumige Küche, die bereits mit einer hochwertigen Einbauküche ausgestattet ist. Diese enthält hochwertige Einbaugeräte wie Geschirrspüler, Kühlschrank, Backofen und Cerankochfeld, sowie eine Dunst-Abzugshaube. Rechts im Flur gibt es noch einen praktischen Abstellraum und ein Gäste-WC.
Herzstück der Wohnung ist das großzügige Wohn- Esszimmer. Große Fenster sorgen für ein tolles Ambiente. Über eine Doppel-Flügel-Tür erreichen Sie den großen gefliesten Balkon mit Aussicht ins Grüne. Auf dem Balkon gibt es ausreichend Platz für eine Sitzgelegenheit.
Die Wohnung verfügt über eine Fußbodenheizung und ist mit modernem Vinyl-Parkett ausgelegt. Die Fenster im Wohnzimmer sind mit elektrischen Rollläden ausgestattet.
Das Haus verfügt über Kabelanschluss und wird durch einen Hausmeister-Service betreut.

Zur Wohnung gehört ein abgeschlossener Keller im UG. Hier befindet sich auch der gemeinsam genutzte Wasch- und Trockenraum.

Die Wohnung soll bevorzugt an Nichtraucher ohne Haustiere vermietet werden.

Lage

Der Ort Reichenbach an der Fils, hat ca.7800 Einwohner und liegt verkehrsgünstig an der B 10 und in der Nähe der Autobahn A8 (ca. 10 Minuten mit dem Auto). Zum Flughafen sind es ca. 20 Autominuten, zum HBF nach Stuttgart ca. 30 Autominuten.
Es gibt gute öffentliche Verkehrsanbindungen.
Der Bahnhof ist von der Wohnung in ca. 5 Minuten zu erreichen.
Alle Geschäfte sind fußläufig erreichbar.

Es gibt ein reges Vereinsleben, ebenfalls ein modernes Freibad, Sportplätze und zahlreiche Freizeitmöglichkeiten.

Ausstattung

Hausmeister-Service
Fußbodenheizung
Elektrische Rollläden in allen Zimmern
Handtuch-Wärmer im Bad
Einbauküche mit elektrischen Geräten

Keller Aufzug Gäste-WC Einbauküche

Sonstiges

Die Angaben zum Objekt stammen vom Vermieter. Für die Richtigkeit der Angaben wird keine Haftung übernommen.

Energieausweisangaben

A+
A
B
C
D
E
F
G
H
  • Enerigeausweistyp Verbrauchsausweis
  • Energiekennwert 49 KWh(m²*a)
  • Energieeffizienzklasse A
  • Energieausweis erstellt am 10.11.2017
  • Energieausweis gültig bis 09.11.2027
  • Heizungsart Zentralheizung
  • Befeuerung / Energieträger Gas

Grundrisse

Wie können wir Ihnen behilflich sein?

Herzlichen Dank für Ihre Anfrage.

Wir werden diese so schnell wie möglich bearbeiten.

Wie können wir Ihnen behilflich sein?
* Pflichtfeld

Reichenbacher Frühjahrsputz

Besuchen Sie uns beim Frühjahrsputz am 13. April 2025 in der „Alten Moste“. Wir stellen Ihnen aktuelle Immobilienangebote vor und kommen mit Ihnen ins Gespräch.

Auch für Ihr leibliches Wohl ist, wie immer, bestens gesorgt!

Wir freuen uns auf Sie,

Ihr Team von Heidi Bartel Immobilien